| 
 | 
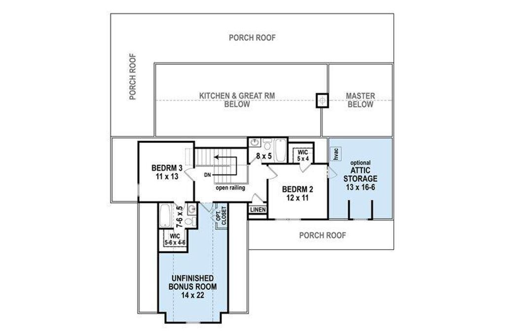
Completion is expected Spring 2026, and the builder welcomes you to personalize the design and finishes to make this home truly your own. This new build blends timeless farmhouse charm with clean, modern lines. The main level features an open-concept great room with vaulted ceilings, a fireplace, and a showstopping kitchen with a large island and walk-in pantry. The primary suite offers a spa-like bath and direct access to the covered back porch. Upstairs, you'll find two additional bedrooms, 2 full baths, and a bonus room. Outdoor living shines with deep front porch and rear wrap around perfect for gatherings year-round. A 1-mile community trail runs through the woods behind the home, leading to future neighborhood amenities (anticipated completion late Spring/early Summer 2026) including a stocked pond, pickleball court, and pavilion, creating a thoughtful balance of privacy and connection. Call agent for updated progress details and showing.
Property Type(s):
	Single Family
			| Last Updated | 10/29/2025 | Tract | Coopers Creek | 
|---|---|---|---|
| Year Built | 2025 | Community | Soddy Daisy | 
| Garage Spaces | 2.0 | County | Hamilton | 
SCHOOLS
| Elementary School | Soddy Elementary | 
|---|---|
| Jr. High School | Soddy-Daisy Middle | 
| High School | Soddy-Daisy High | 
Additional Details
| AIR | Central Air, Electric, Multi Units | 
|---|---|
| AIR CONDITIONING | Yes | 
| AREA | Soddy Daisy | 
| CONSTRUCTION | HardiPlank Type, Stone | 
| EXTERIOR | Private Yard, Rain Gutters | 
| FIREPLACE | Yes | 
| GARAGE | Attached Garage, Yes | 
| HEAT | Natural Gas | 
| HOA DUES | 200 | 
| INTERIOR | Built-in Features, Crown Molding, Double Vanity, High Ceilings, Kitchen Island, Master Downstairs, Open Floorplan, Pantry, Soaking Tub, Vaulted Ceiling(s), Walk-In Closet(s) | 
| LOT | 1.07 acre(s) | 
| LOT DESCRIPTION | Level, Rectangular Lot | 
| LOT DIMENSIONS | 100 x 496.47 x 111.1 x 429.42 | 
| PARKING | Concrete, Driveway, Garage Door Opener, Attached, Garage | 
| POOL DESCRIPTION | None | 
| SEWER | Septic Tank | 
| STORIES | 2 | 
| STYLE | Other | 
| SUBDIVISION | Coopers Creek | 
| TAXES | 95.64 | 
| UTILITIES | Cable Available, Electricity Connected, Natural Gas Connected, Phone Connected, Water Connected, Underground Utilities | 
| WATER | Public | 
| WATERFRONT DESCRIPTION | Lake Privileges | 
Location
Contact us about this Property
| / | |
| We respect your online privacy and will never spam you. By submitting this form with your telephone number you are consenting for Todd Henon to contact you even if your name is on a Federal or State "Do not call List". | |
    Listing Courtesy of Keller Williams Realty
	IDX information is provided exclusively for consumers’ personal, noncommercial use, that it may not be used for any purpose other than to identify prospective properties consumers may be interested in purchasing.
Data is deemed reliable but is not guaranteed accurate by the MLS.
Keller Williams Realty does not display the entire MLS of Chattanooga, Inc. database on this website. The listings of some real estate brokerage firms have been excluded.
This site was last updated on 10/30/25 5:10 PM PDT
Copyright© 2002 by Chattanooga Association of REALTORS®
This IDX solution is (c) Diverse Solutions 2025.
 
								 
				
