|
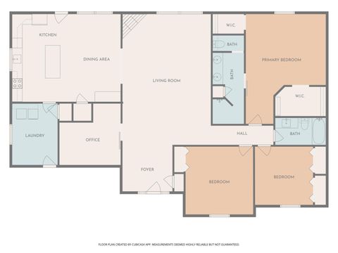
Welcome to peaceful living in the Magnolia Ridge Subdivision of Chatsworth, Georgia"”widely known for its quiet atmosphere, strong sense of community, and reputation as one of the safest counties in the state. This well-maintained 3-bedroom, 2-bath, single-level home offers comfort, functionality, and beautiful natural surroundings. Perfectly positioned backing up to Spring Lakes Golf Course, the home enjoys serene views and a scenic mountain backdrop as you arrive down Magnolia Lane. Inside, the thoughtfully designed single-level floor plan provides easy living, featuring a spacious primary bedroom on the main level, a large kitchen island ideal for gathering, and a cedar-lined walk-in pantry that adds both charm and storage. Step outside to your private backyard retreat, designed for relaxation and entertaining. Highlights include an in-ground swimming pool, lush and well-established landscaping, a covered back porch with deck area, and a pergola with a dedicated sitting space"”perfect for enjoying the peaceful surroundings year-round. The current owner has made numerous significant upgrades, including: New main electrical line to the property New exhaust vents installed throughout Hardwired camera security system New return floor vents Full crawlspace encapsulation with transferable annual maintenance and dehumidifier Insulation upgraded to current code New HVAC system installed October 2025 This home combines modern updates, outdoor living, and the calm, secure lifestyle Chatsworth is known for"”all while offering golf course adjacency and mountain views. A rare opportunity to enjoy comfort, safety, and serenity in a beautiful North Georgia setting.
Property Type(s):
Single Family
| Last Updated | 2/1/2026 | Tract | Magnolia Ridge |
|---|---|---|---|
| Year Built | 1994 | Garage Spaces | 2.0 |
| County | Murray |
SCHOOLS
| Elementary School | Spring Place Elementary |
|---|---|
| Jr. High School | Gladden Middle |
| High School | Murray County |
Additional Details
| AIR | Electric |
|---|---|
| AIR CONDITIONING | Yes |
| APPLIANCES | Dishwasher, Microwave, Oven, Refrigerator |
| CONSTRUCTION | Brick, Vinyl Siding |
| EXTERIOR | Fire Pit |
| FIREPLACE | Yes |
| GARAGE | Attached Garage, Yes |
| HEAT | Central |
| INTERIOR | Master Downstairs, Pantry |
| LOT | 0.65 acre(s) |
| LOT DESCRIPTION | Back Yard, Landscaped, Near Golf Course, On Golf Course |
| LOT DIMENSIONS | 137x216x137x220 |
| PARKING | Garage, Garage Faces Front, Off Street, Attached |
| POOL DESCRIPTION | In Ground |
| SEWER | Septic Tank |
| STORIES | 1 |
| STYLE | Ranch |
| SUBDIVISION | Magnolia Ridge |
| TAXES | 2508.3 |
| UTILITIES | Electricity Connected, Natural Gas Connected, Water Connected |
| WATER | Public |
Location
Contact us about this Property
| / | |
| We respect your online privacy and will never spam you. By submitting this form with your telephone number you are consenting for Todd Henon to contact you even if your name is on a Federal or State "Do not call List". | |
Listing Courtesy of Fletcher Bright Realty
IDX information is provided exclusively for consumers’ personal, noncommercial use, that it may not be used for any purpose other than to identify prospective properties consumers may be interested in purchasing.
Data is deemed reliable but is not guaranteed accurate by the MLS.
Keller Williams Realty does not display the entire MLS of Chattanooga, Inc. database on this website. The listings of some real estate brokerage firms have been excluded.
This site was last updated on 2/7/26 7:45 PM PST
Copyright© 2002 by Chattanooga Association of REALTORS®
This IDX solution is (c) Diverse Solutions 2026.
