|
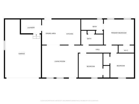
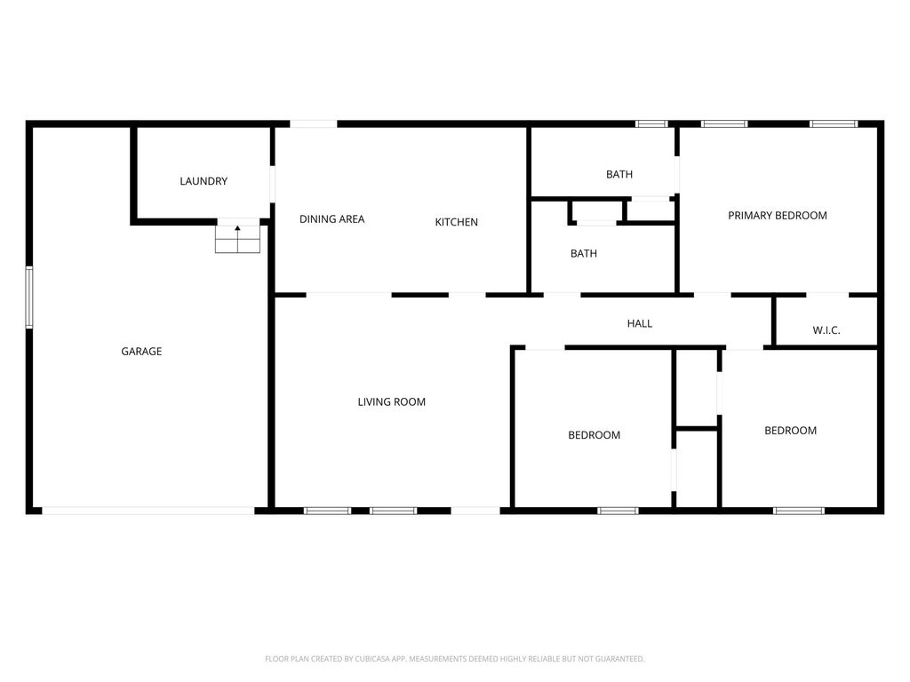
Charming one level home on almost half an acre! Walk in to a warm open living room with a vaulted ceiling. The kitchen has a built in island and an additional space for a dining room table. Off of the dining space is a full size laundry room with storage leading out to the garage. The primary bedroom has an en suite bathroom and separate closet. Both guest bedrooms are on the other side of the hallway. All the flooring in the home is newly installed LVP and the front porch was recently freshly stained. If you like outdoor living, you will enjoy the close proximity to the water and TWRA wildlife managed land. The neighborhood does have water access down the road. The large backyard has a mix of cleared and wooded space giving privacy views but still plenty of usable space. The neighborhood is just secluded enough to be quiet and peaceful living, but you can still get to all of Cleveland's main amenities like Target in under 20 minutes.
Property Type(s):
Single Family
| Last Updated | 2/5/2026 | Tract | Lake Pointe |
|---|---|---|---|
| Year Built | 2005 | Garage Spaces | 2.0 |
| County | Bradley |
SCHOOLS
| Elementary School | North Lee Elementary |
|---|---|
| Jr. High School | Ocoee Middle |
| High School | Walker Valley High |
Additional Details
| AIR | Central Air, Electric |
|---|---|
| AIR CONDITIONING | Yes |
| APPLIANCES | Dishwasher, Electric Range, Microwave, Refrigerator |
| CONSTRUCTION | Vinyl Siding |
| EXTERIOR | Private Yard |
| GARAGE | Attached Garage, Yes |
| HEAT | Central, Electric |
| INTERIOR | Kitchen Island, Vaulted Ceiling(s) |
| LOT | 0.48 acre(s) |
| LOT DESCRIPTION | Level |
| LOT DIMENSIONS | 100x209 |
| PARKING | Driveway, Garage, Attached |
| SEWER | Septic Tank |
| STORIES | 1 |
| STYLE | Ranch |
| SUBDIVISION | Lake Pointe |
| TAXES | 849.23 |
| UTILITIES | Electricity Connected, Water Connected |
| WATER | Public |
| WATERFRONT DESCRIPTION | River Access |
Location
Contact us about this Property
| / | |
| We respect your online privacy and will never spam you. By submitting this form with your telephone number you are consenting for Todd Henon to contact you even if your name is on a Federal or State "Do not call List". | |
Listing Courtesy of REAL Broker
IDX information is provided exclusively for consumers’ personal, noncommercial use, that it may not be used for any purpose other than to identify prospective properties consumers may be interested in purchasing.
Data is deemed reliable but is not guaranteed accurate by the MLS.
Keller Williams Realty does not display the entire MLS of Chattanooga, Inc. database on this website. The listings of some real estate brokerage firms have been excluded.
This site was last updated on 2/14/26 11:28 AM PST
Copyright© 2002 by Chattanooga Association of REALTORS®
This IDX solution is (c) Diverse Solutions 2026.
